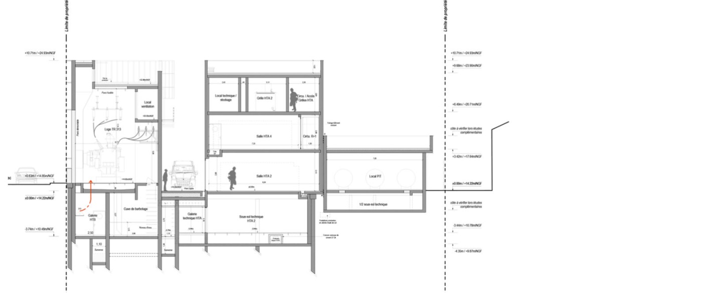
Poste Source 63/15 kv de Glacière
Mérignac (33)
INFOS
Maître d'ouvrage
ENEDIS - Direction Régionale Aquitaine Nord
Responsable MO
Julien LEYMARIE
Programme
Restructuration - Extension
Procédure
Marché négocié
Surface
988 m² SP
Coût des travaux
5 000 000 € HT
Calendrier
Concours novembre 2018 ; Livraion 2026
Mission
Mission de base + EP + OPC + DQE
Spécificités
Site occupé / Phasage des travaux ; Fondations spéciales ; Cuves de barbotage
ÉQUIPE DE MAÎTRISE D'ŒUVRE
Mandataire
BET Fluides
Économiste
OPC
architecture MALACAN MARTRES
BET Fluides
Économiste
OPC
BET Structure
Eureka Ingénierie
Acousticien
Axilab